Valle Escondido Lot 2
Guaynabo, Puerto Rico
2024-
STUDIO SOLDIVIERO X AGS ARCHITECTURE
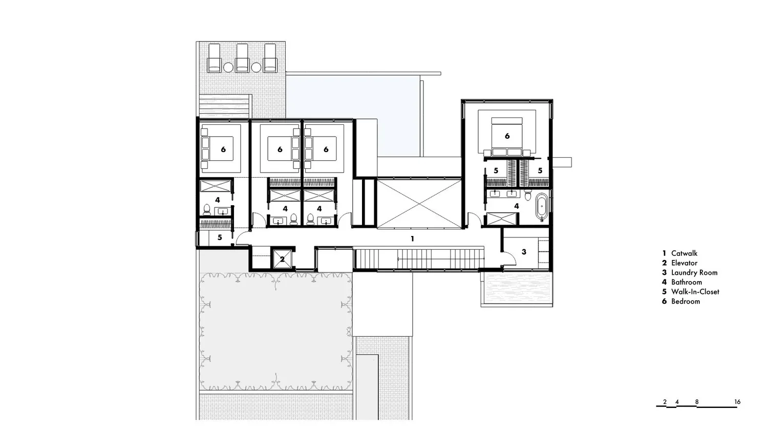
The second home in the Valle Escondido series is positioned where the hillside begins to fall away more steeply. In response, the design is arranged vertically across three levels. The lowest floor is partially carved into the terrain, housing service and utility spaces. The main living areas occupy the middle level, while bedrooms are located above, offering privacy and elevated views. A double-height catwalk visually connects the upper and middle floors, reinforcing a sense of spatial continuity across the vertical section.
Circulation is organized around a single-run stair and elevator core, creating a clear central spine. This layout allows for efficient movement between floors while maintaining separation between public and private areas. The vertical arrangement also supports cross-ventilation and daylight access on all levels, maximizing the home’s connection to its surroundings.
At the rear, the building cantilevers outward from the hillside, extending views and creating a shaded outdoor terrace beneath. This gesture emphasizes the home’s lightness and opens the interior to the landscape, particularly on the main living floor.
With carefully proportioned volumes, restrained materials, and a layered massing strategy, House II balances stability and lightness—appearing grounded at its base while projecting outward as it rises with the slope.